



Q647MF氣動卸灰球閥(噴煤粉專用球閥)
Q647MF氣動卸灰球閥屬于噴煤粉專用球閥是作為控制含塵、含固體粉末,特別適用于高爐煤粉噴吹、空氣管路及噴槍管路等系統。采用雙閥桿結構,可長期保持開啟和關閉的位置精度;開啟和關閉的扭矩小,靈活輕便;執行機構有手動、氣動、液動、電動等,可遠距離控制或計算機程控,單向密封和進口縮孔式結構,特別適用于噴煤粉的氣固二項介質中,不會積灰卡阻;密封圈、密封座、球體采用專門材料和特殊工藝處理,耐磨損、壽命長;密封圈裝有自
| 產品名稱: | 氣動卸灰球閥 | 產品型號: | Q647MF |
| 公稱通徑: | DN50~DN500 | 結構形式: | 球形 |
| 公稱壓力: | 2.5Mpa~4.0Mpa~6.4Mpa~10.0Mpa | 連接方式: | 法蘭 |
| 適用溫度: | -20~+100℃~+450℃ | 驅動方式: | 蝸輪、氣動、液動、電動 |
| 閥體材質: | 鑄鋼、不銹鋼 | 制造標準: | 國標GB、德國DIN、美國API、ANSI |
| 適用介質: | 石灰、煤灰、煤渣 | 生產廠家: | 上海凱利科閥門有限公司 |
| 閥體 | 閥桿 | 閥球 | 密封面 | 墊片 | 填料 | 工作溫度 | 適用介質 |
| WCB | 1Cr13 | 1Cr13 |
1Cr13 司太立合金 本體材料 |
柔性石墨 不銹鋼加柔性石墨 08軟鋼 F304 F316 |
柔性石墨 編結石墨 |
-29-425℃ | 水、蒸汽、油品 |
| WC6 | 15CrMo | 15CrMo | -29-425℃ | ||||
| WC9 | 25Cr2MoV | 25Cr2MoV | |||||
| LCB | 304 | 304 | -46-354℃ | ||||
| CF8 | 304 | 304 | -196-600℃ | 部分酸、堿 | |||
| CF3 | 304L | 304L | |||||
| CF8M | 316 | 316 | |||||
| CF3M | 316L | 316L |
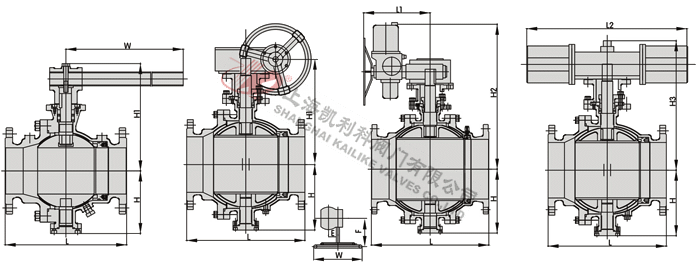
| 公稱壓力 | 50 | 65 | 80 | 100 | 125 | 150 | 200 | 250 | 300 | 350 | 400 | 450 | 500 | |
| 系列1L | 216 | 241 | 283 | 305 | 356 | 394 | 457 | 533 | 610 | 686 | 762 | 864 | 914 | |
| 系列2L | - | - | - | - | - | - | 500 | 600 | 700 | 800 | 900 | - | 1000 | |
| H | 102 | 114 | 127 | 152 | 184 | 219 | 273 | 360 | 395 | 430 | 470 | 550 | 580 | |
| 手動 | H1 | 107 | 125 | 152 | 178 | 300 | 330 | 398 | 495 | 580 | 625 | 670 | 698 | 840 |
| E | - | - | - | - | - | - | 115 | 116 | 171 | 171 | 257 | 257 | 257 | |
| F | - | - | - | - | - | - | 350 | 350 | 400 | 420 | 400 | 420 | 400 | |
| W | 230 | 400 | 400 | 650 | 1050 | 1050 | 600 | 600 | 800 | 800 | 800 | 800 | 800 | |
| WT(KG) | 12 | 16 | 22 | 35 | 58 | 74 | 205 | 322 | 460 | 576 | 864 | 1280 | 1600 | |
| 電動 | H2 | - | - | - | - | - | 554 | 600 | 652 | 760 | 770 | 830 | - | 940 |
| L1 | - | - | - | - | - | 235 | 235 | 235 | 259 | 400 | 400 | - | 410 | |
| 氣動 | H3 | 274 | 379 | 389 | 479 | 552 | 666 | 736 | 926 | 1059 | 1127 | 1127 | 1468 | 1538 |
| L2 | 270 | 405 | 405 | 576 | 576 | 776 | 776 | 776 | 1060 | 1060 | 1060 | 1360 | 1360 | |
聲明:【Q647MF氣動卸灰球閥(噴煤粉專用球閥)】規格型號、結構尺寸由上海凱利科閥門有限公司提供,如何選擇適用的Q647MF氣動卸灰球閥(噴煤粉專用球閥)產品,使之在工藝控制中安全可靠、經濟適用,可致電我司銷售部門及技術部門,我們將在最短的時間內為您解答! |